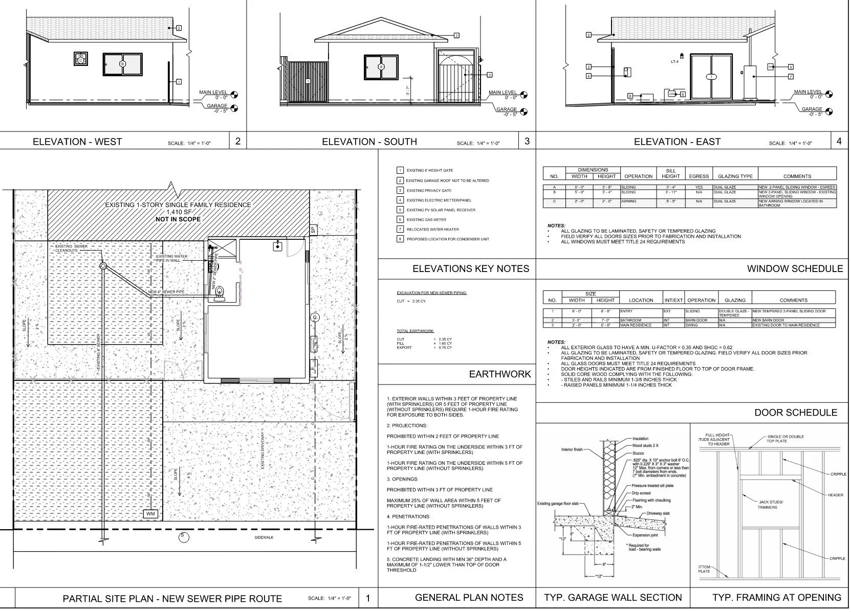
This 325 SF garage conversion ADU in San Diego transforms an underused space into a bright, modern studio with a compact kitchenette, dining area, and comfortable sleeping zone designed for efficient living and clean, contemporary finishes. Adding an ADU gives the owner real flexibility: rental income to offset the mortgage, a private space for family or guests, and long term value by increasing property functionality and resale appeal while creating a separate, self-contained living unit on the lot.

