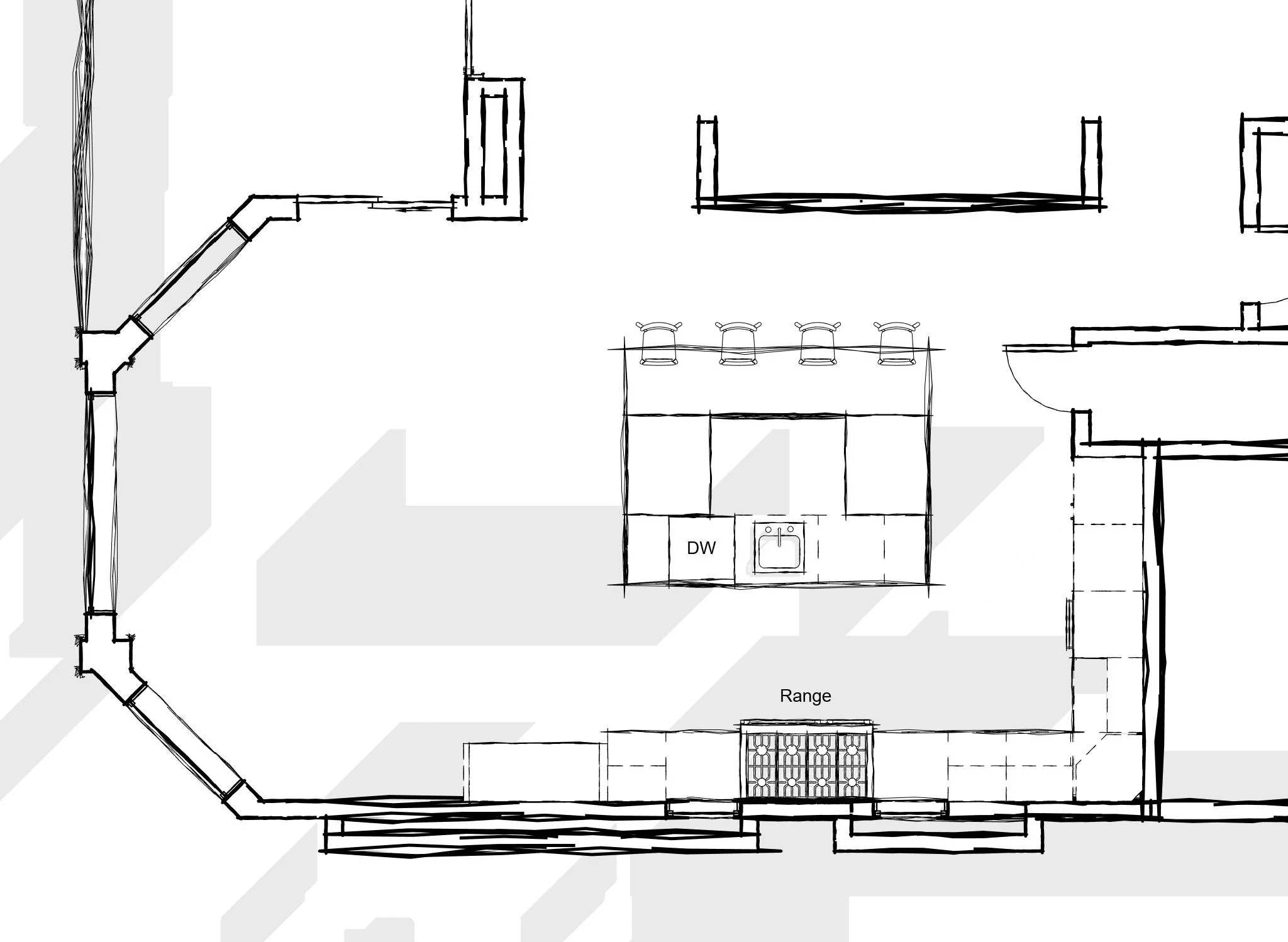
This is a kitchen remodel modernizes the heart of the home with a clean, warm material palette and upgraded performance. The space features all-new appliances, custom cabinetry, and refreshed flooring, anchored by a generous waterfall island designed for everyday cooking and gathering.
Thoughtful detailing soft natural wood tones, brass accents, and bright stone surfaces creates a timeless, high end finish.

