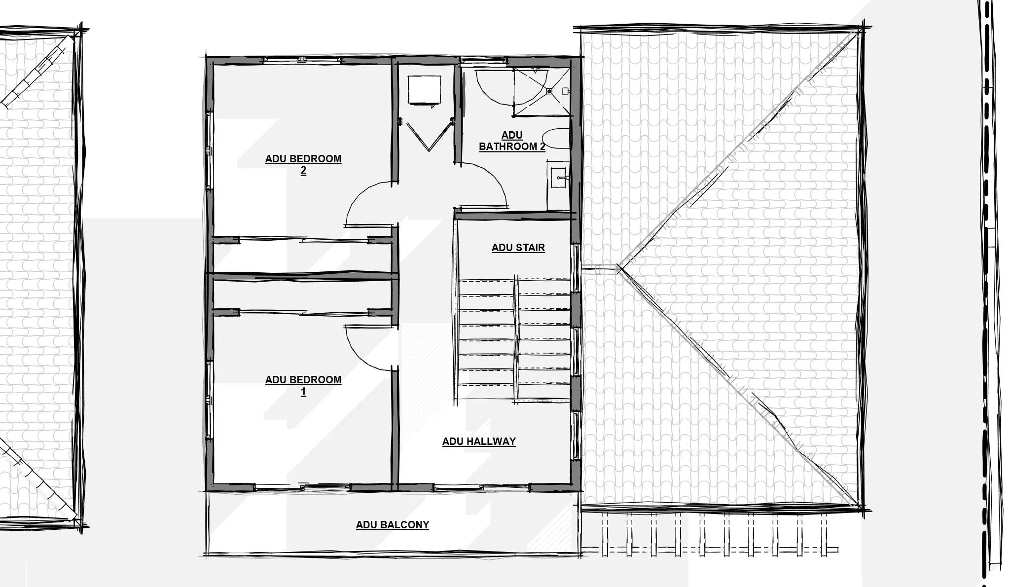
This Encinitas project expands an existing 5,830 SF residence with a thoughtfully integrated addition and a new 1,200 SF two-story ADU.
The design blends coastal Spanish inspired architecture white stucco, clay tile roofs, and arched detailing with clean modern glazing to enhance light, views, and indoor/outdoor living. Together, the main home and ADU create a flexible property setup for extended family, guests, or rental use while maintaining a cohesive, high-end curb appeal.

